各位TY,这个户型怎样?需要怎么改,多谢了?
导读:【答题主疑惑】下个月准备装修了,请问各位条友,这个户型怎么样?装修的时候怎样拆改比较好?
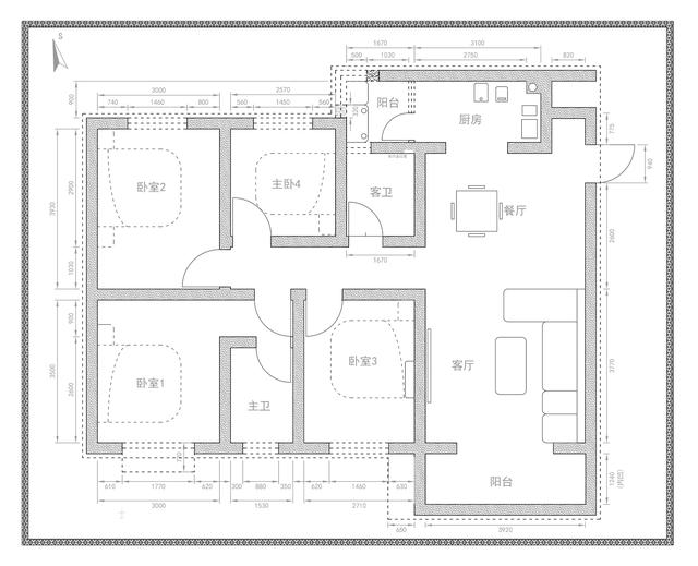
今天尝试一下这四室的户型,大致看了看,需要优化的地方不多,主题都是围绕厨房,客餐厅有一点小建议。题主这户型使用面及差不多85㎡,这户型不错,如果客卫能和主卫调换面积就完美了。下面开始优化改造方案,原户型图式如下▼
从原户型图可以看出这户型挺好装修,仔细分析后给出两个优化方案,与其说两个,第二个方案其实只是厨房有一点小变动而已。优化户型;第一要素,拆墙那些地方不能动,房屋里面水管,燃气水电预埋位置是否有明显标识,如果没有,必须通过物业得到确认方可动工(砸起来是分分钟的事,砸到水管可就变成碰坏五分钟,维修一整天了)。
接下来是考虑采光、空气流通性、硬装结束后,接下来的软装能不能顺利进行,尽量把尺寸量精准,给软装准备好足够空间。有时候比较管用的一个方法是借鉴
借鉴不丢人,多看看楼上楼下邻居的房子怎么装的,其实这就是装修慢一步的好处,谁都不可能装修到百分百,看看别人的装修效果,结合自己的方案,取长补短。
下面就优化方案第一步:拆墙
需要拆除的位置在下面图片中做出了表记,红色标识处就是需要拆掉的
图示如下▼
拆的部位不多
优化方案一,决定把进户门和厨房之间墙壁全部拆掉,包括对面哪一点,拆掉这堵墙壁的好处是,利用原墙壁空间基础,如果不够向进户门位置移动一些。
做一个L形鞋柜加吊柜上顶,中间位置只需要一块背板好,鞋柜径深有350㎜足够,鞋柜上面是呈内凹的,只是紧贴墙壁有块400㎜高度就可以,上面吊柜,也就一个玄关。
从进户门左边开始L型到餐厅结束。
之后拆掉客厅与阳台之间的两个墙垛,把客厅往外平移,把客厅可自由活动区域进一步扩大。
忘记了还有两个位置该做标记,一个是厨房操作台那堵墙和门,主卫的门也需要调换位置。
下面是拆好的户型图示如下▼
从图片里已经把主卫的门调换了位置,感觉原户型图里那样不好,就算是主卫,主卧,假如男主或者女主从卫生间出门的那一刻,刚好老公或老婆从卧室外推门,力度不大还好,万一力道但凡有一些,磕到碰到那可不是闹着玩的。
装修的时候没考虑到这因素,搬家入住发现问题可就麻烦大了。
接下来展示砌完墙,改造好之后,布置好软装的户型图
图示如下▼
优化方案一完成式列就是图片里面的样子
方案详解
【1】进户门处:此处是775㎜*820㎜的面积,也就是0.6㎡,转左至右逆时针做一个L型鞋柜带收纳的玄关,利用拆掉墙壁空间,应该不会占用多少原面积。
【2】厨房:厨房把操作阳台打通,操作阳台向着烟道处预留400㎜空间备用(看图纸好像那个位置有排水管啥的?继续向烟道方向预留650㎜空间房冰箱,靠近冰箱位置安图中做橱柜,餐厅与厨房之间,也就是玄关背后做一个长1200㎜*厚度400的圆弧吧台,加上对面400㎜厚度的酒柜。中间还有大概1300㎜的空间,可供厨餐厅之间自由活动,对,这是一个开放式厨房。
【3】餐厅:餐厅位置加了一个酒柜,就算男主不喝酒,万一哪一天有朋自远方来?尤其是那种真正的朋友,这年月,真朋友可不多了,得珍惜,近年款待朋友最高礼遇无非就是家宴了。
【4】客厅:客厅外面阳台位置应该有窗户?但是户型图看不出到底有没有,就当有吧!在餐厅过来,从阳台尽头量5010㎜处,紧挨墙壁横向定制或者做一个长度1200㎜的镂空隔断,吊顶对应的造型把客餐厅分出区域,包括地砖也对应做出波导线。
【5】主卫:这是最后一个优化也是必须优化的地方,刚才已经说了,避免男女主出现磕碰,生活中,两口子难免磕磕碰碰,但是这样的磕碰还是算了吧!
优化方案一的优点:主卫门位置调换是必须的、也算是优点之一吧!进户门进门处玄关,拆掉的墙给做玄关腾出空间,这算有效利用,应该算优点之一。想不出那里还有优点了,不能继续往自己脸上贴金。
下面是优化方案二的图示▼
一个小改变:不过把厨房的属性改了一下方式,厨房与餐厅之间安装一道推移门,隔断厨房与餐厅,玄关背后小吧台也就不能要了。
所有优化方案全部结束
结语:具体方案得按照现场装修决定,这里只是给题主提供建议仅供参考,不好的地方还请别见怪,祝你生活愉快,工作顺利!
各位TY,这个户型怎样?需要怎么改,多谢了?
挺好的呀!为什么偏要改呢?
各位TY,这个户型怎样?需要怎么改,多谢了?
户型方正,整体设计基本上合理,唯一美中不足的就是卧室1里的厕所和门对的太准了,能把这个厕所门处理好了就完美了
各位TY,这个户型怎样?需要怎么改,多谢了?
这是四室两卫两厅的户型,是南北通透的高品质户型,难得的是卫生间都有窗户,布局还特别合理,对于一家三代人来住的话很适合,每个人都能有自己独立的空间。
对装修而言,我感觉有几点需要注意,可以让设计师帮你针对以下几点来设定方案。
入户门位置正对着餐桌,这个位置可以做一个屏风鞋柜,既美观又特别实用,又不会显得太空荡。
客厅卫生间太小,客厅卫生间是用的的卫生间,太小的话会很不方便,可以把厨房露台改造成淋浴间,这样洗澡的空间就很大,但这会影响到厨房的通风问题,这要看您个人的需求了。
可以把洗衣机按放到阳台,洗完衣服晾晒也很方便,还能富裕出卫生间的空间。
卧室1的卧室门可以改到卧室东面墙上,这样卧室的卫生间也就可以成为一个公共卫生间,也避免卫生间不够用时,去开卧室门才能进主卧卫生间。
我个人建议业主注意以上几点,具体设计方案要个设计师详细协商,希望能帮到你
各位TY,这个户型怎样?需要怎么改,多谢了?
还可以,基本上没有改的必要了,
各位TY,这个户型怎样?需要怎么改,多谢了?
畅谈关于装修的那些事,分享装修各种经验和知识。大家好,我是畅谈装修,关注我即可了解更多关于装修的那些事!
这个户型从装修角度来说,是属于优质的户型,属于南北通透的优质户型,是完全可以下单购买的户型。这个户型的面积也属于改善型的优质房屋,不管是三代同堂还是一家四口,都有足够的空间保证每个人都有属于自己的独立空间,让一家人居住的其乐融融。
对于这个平面图上来看,房屋装修时因原始布局并不是最佳方案,所以说这个户型要改动的位置还是有一些的,因每个人居住需求的不同,接下来就来说出几个硬性改造位置。
1.入户位置要做玄关。户型入户位置正对餐厅,入户无玄关,室内一览无余隐私,所以在入户位置做出玄关是非常有必要性的。而根据户型来说入户位置的玄关建议做下柜上通透造型的玄关柜更符合使用需求,同时也又能保证入户位置的采光和美观性。
2.客卫面积过小,布局不合理。虽然说配置了两个卫生间,但是使用最多的仍然是客卫,而客卫的面积过小,无法保证有淋浴室,所以旁边的小阳台要改造到客卫空间内,作为淋浴室来使用。
3.卧室1和2衣柜位置过小,美观程度不佳。虽然说户型配置了4个卧室,但是作为使用最多的主卧室和次卧室因布局而影响到衣柜的摆放,让衣柜的尺寸过小窄小,所以主卧室和次卧室的布局要重新设计,让这两个卧室更加合理。
4.过廊采光不足。由于是4个卧室的原因,所以形成暗过廊的布局,过廊的采光明显不足,所以在过廊位置建议拆墙部分墙体,使用采光好些的玻璃来代替墙体;或者是在过廊设计出过廊柜,增加灯光的设计,以提高走廊的采光和整体美感。
综合以上所述,户型是属于优质的,这点是非常明显的,在装修时只需要局部改造一下就能满足不同人士的不同需求。
内容仅供参考,如果您需解决具体问题(尤其法律、医学等领域),建议您详细咨询相关领域专业人士。
版权声明:文章内容来源于网络,版权归原作者所有,如有侵权请与我们联系,我们将及时删除。
